天津市建筑学会

The Architectural Society of Tianjin China

40万平米城市级七星全龄友好住区|星河传奇香瑞里






1

星河传奇 | 40万平米城市级七星全龄友好住区

项目概况

项目位居京津冀协同发展城市圈大格局下的宝坻城市未来发展核心区域,地处宝坻城区黄金中轴北首,紧邻鲍丘河,是宝坻北城最大、最高端的标杆性住宅项目。距中心城区3km,交通发达,公交、医疗、教育、商业,包括自建配套完善。规划总用地面积约22.05公顷,界内使用面积20.26公顷。经过多轮评审,天怡得以中标,最终作为规划设计单位参与其中





2

宝坻7星全龄友好社区 | 星河传奇香瑞里

设计理念

受益于周边坚实的环境基础、临近优美鲍丘河的地段特性,我们为该项目定位:城市级标杆性滨水住宅大作设计上最大程度利用与开阔水景的关系,打造宝坻“水”主题园林景观社区,两轴、三带、十八花园景观组团,形成建筑与景观环境自然生长。


上三图来源于 法国埃尔萨景观设计事务所


社区整体规划86-144㎡低密洋房、86-125㎡瞰景高层以及稀有叠拼产品,以多元的建筑类型,人性的空间尺度,满足全龄生活方式的需求。项目是首个践行7星生活社区规划设计理念的低密宜居大盘,将全龄友好植入其中,让幼有所教、青有所娱、老有所乐。







3

宝坻7星全龄友好社区 | 星河传奇香瑞里

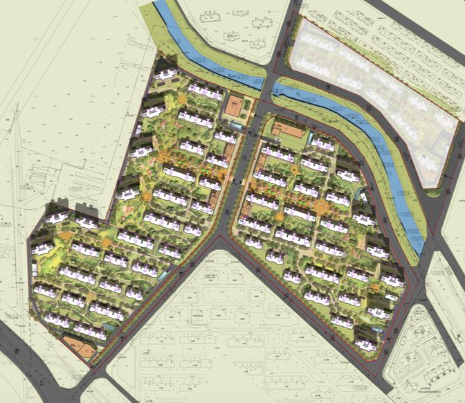
规划布局

本小区由点式高层住宅与板式多层住宅组成。点式高层住宅主要沿西侧及东北侧区域布置,形成小区内部围合、南低北高的城市空间意向;板式多层住宅则在小区南侧,获得更好的日照及景观资源,形成多样的城市界面,也更有利于形成庭院的趣味空间组团。





4


宝坻7星全龄友好社区| 星河传奇香瑞里

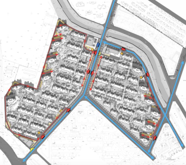
交通流线

通过深入分析城市人流车流流向流速,选择在人流最密集的兴海路两侧形成两个内退式小区主入口,商业配套等配套建筑在此设置方便居民日常生活。

小区内部实行部分人车分流设计,地面上在环路和板式多层住宅宅前设置部分地面停车,通过减速带等景观设施的设置保证人车混行区域的出行安全。





5

宝坻7星全龄友好社区 | 星河传奇香瑞里

景观绿化

小区内部由绿化、铺地、宅间小路等组织形成。两个主入口开始的中心景观带贯穿整个小区,并联通每个由建筑围合的趣味空间组团,形成主景观轴线。舒朗开阔的景观效果,增强内部空间的联动性。景观上的点、线、面的布置形成有层次、递进的系统性绿化方案。




6

宝坻7星全龄友好社区 | 星河传奇香瑞里

天怡说

抓住宝坻新城发展契机,天怡尝试提供一种新颖又综合的城市建筑表现形式。希望与城市的发展相融合,在融合中树立新的形象标杆。同时,适应环境、得益环境、超越环境,在喧闹的城市一隅创造宁静的港湾。独到的城市规划,多元的建筑类型,人性的空间尺度,满足各种生活方式的需求。






天津市建筑学会旨在促进和繁荣天津建筑科学技术、培养建设科技人才以及促进天津市城建事业发展。

欢迎广大会员关注天津市建筑学会


天津市建筑学会

The Architectural Society of Tianjin




文章分类: 优秀项目
分享到: